Costruzioni civili
Villa Larzano
Committente: Privato
Attività: Demolizione e ricostruzione di edificio residenziale
L’intervento ha previsto la demolizione parziale e la ricostruzione di parti di un fabbricato in rudere, conservando e consolidando le pareti portanti esistenti. Sono stati realizzati nuovi solai e copertura in legno coibentata, con il solaio controterra su vespaio aerato e quello interpiano in latero-cemento. Le partizioni interne sono in laterizio, con scala interna autoportante in ferro e pedate in legno, progettate secondo le norme antisismiche vigenti.








Committente: Privato
Attività: Progetto di manutenzione straordinaria – Villa Rivergaro
L’intervento ha compreso la realizzazione di una piscina interrata di circa 55 m² e di una nuova terrazza di 14 m² in sostituzione di parte del balcone demolito. Sono stati effettuati adeguamenti su porte e finestre e la sostituzione della copertura. Il progetto ha migliorato funzionalità e comfort della villa, rispettando le normative strutturali e valorizzando l’armonia architettonica complessiva.
Villa Rivergaro












Committente: Privato
Attività: Manutenzione straordinaria e ampliamento - Monticelli Pavese
Il progetto ha previsto l’ampliamento di circa 29 m² con fondazione in cemento armato, murature portanti in laterizio e solaio realizzato su vespaio aerato. Sono stati effettuati interventi su pareti portanti per l’apertura di una porta e di una finestra, la chiusura di una finestra esistente e la realizzazione di una copertura piana. L’intervento ha consentito di aumentare gli spazi abitativi e migliorare la funzionalità della villa.
Villa Monticelli








Condominio Venturini
Committente: Privato
Attività: Progetto di consolidamento terrazza e solaio nel condominio Venturini
L’intervento ha previsto il consolidamento del solaio in laterocemento con rinforzi in fibra e geomalta antisismica, insieme al ripristino dell’impermeabilizzazione della terrazza soprastante, includendo massetto, membrana impermeabile e posa di piastrelle antiscivolo.
Condominio Gramsci
Committente: Privato
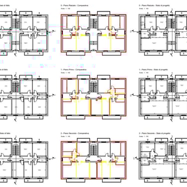
Attività: Progetto di manutenzione straordinaria edificio residenziale
Il progetto ha riguardato la riorganizzazione funzionale degli spazi interni, con modifiche a pareti portanti, tra cui l’allargamento di varchi e la chiusura di aperture. Sono stati eseguiti interventi di efficientamento energetico e il rinnovo degli ambienti interni, inclusi bagni e finiture, per adeguare gli spazi alle nuove esigenze d’uso.








Committente: Privato
Attività: Intervento di realizzazione di un locale per autisti
Realizzazione di un edificio monopiano in muratura armata da 53 m² destinato a locale servizi autisti, con copertura piana isolata e pavimentazione interna su igloo e massetti. È stata installata una pensilina metallica sovrastante per protezione dell’area antistante, con struttura in colonne e travi in acciaio e copertura in pannelli sandwich, completa di controventi e irrigidimenti secondo normativa.
Locale autisti






Soppalco Fantasy
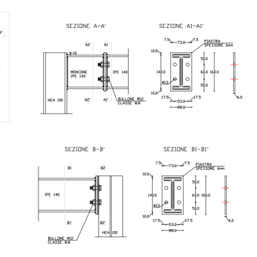
Committente: Privato
Attività: Progetto esecutivo – Soppalco uffici
Il progetto ha previsto la realizzazione di un soppalco metallico di circa 17 m² all’interno di un ufficio. La struttura portante in acciaio sostiene un solaio in legno massello, con colonne appoggiate su plinti in calcestruzzo armato e connessioni realizzate con bulloni ad alta resistenza. L’intervento ha permesso di aumentare la superficie utilizzabile senza compromettere stabilità ed estetica degli ambienti.







